1
/
of
11
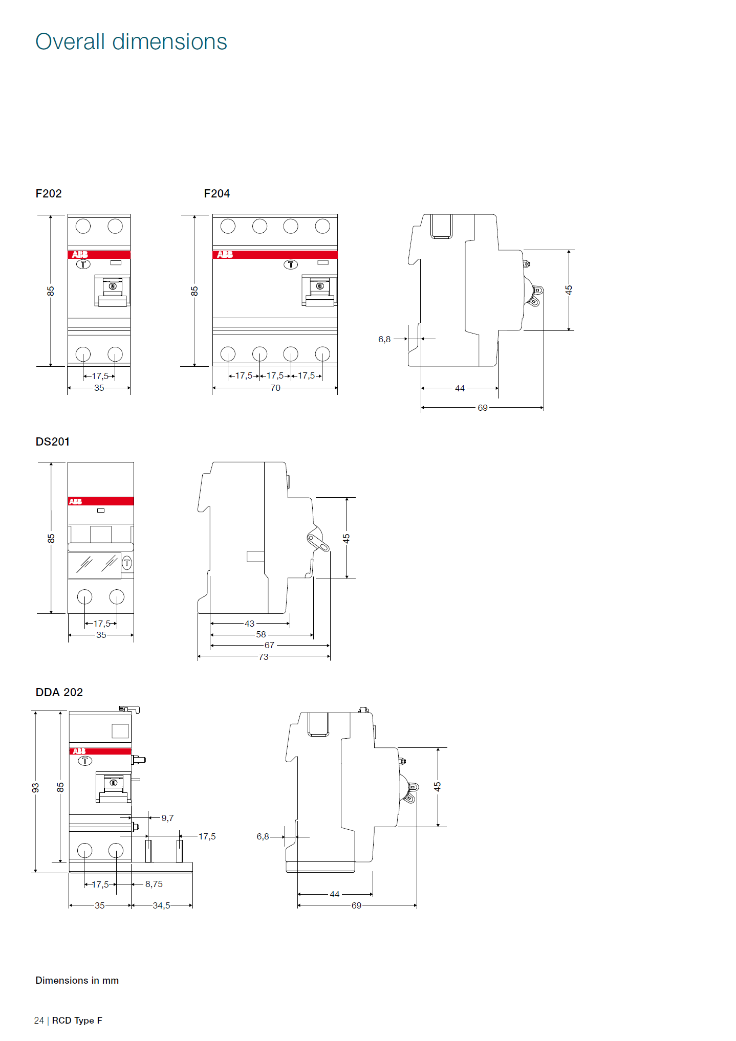
ABB Residual Current Circuit Breaker(RCCB) F204 AC-100/0.3 2CSF204001R3900
ABB Residual Current Circuit Breaker(RCCB) F204 AC-100/0.3 2CSF204001R3900
Regular price
$125.00 SGD
Regular price
Sale price
$125.00 SGD
Unit price
/
per
Couldn't load pickup availability
The variety of residual current devices has continuously increased in last decades
following the technology evolution and the massive introduction of electronics in
all fields of applications.
According to the capability to detect different wave forms of residual current and
the relative sophisticated type testing, today the spectrum of RCD types covers
from pure AC loads up to high frequency and DC related applications with an
increasing level of protection passing from AC types up to F and B types.
Share
